Prodej domu RD3, 3+kk, 99m2, Vrbice, okres Karlovy Vary
Popis nemovitosti
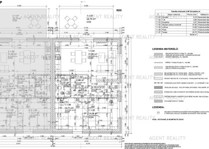
AGENT Reality nabízí exkluzivně k prodeji řadový dům RD3 o dispozici a velokosti 3+kk, 99 m2, umístěném na vlastním pozemku 55/6, 3+kk, 99 m2, na vlastním pozemku 538 m2 v obci Vrbice, okres Karlovy Vary.
Dům s pozemkem v budovaném developerském projektu se nachází na okraji západní strany obce a navazují na stávající zástavbu v blískosti náměstí u hlavní komunikace směr Karlovy Vary nebo Praha.
Nabídku všech domů naleznete na webových stránkách projektu www.domyvrbice.cz
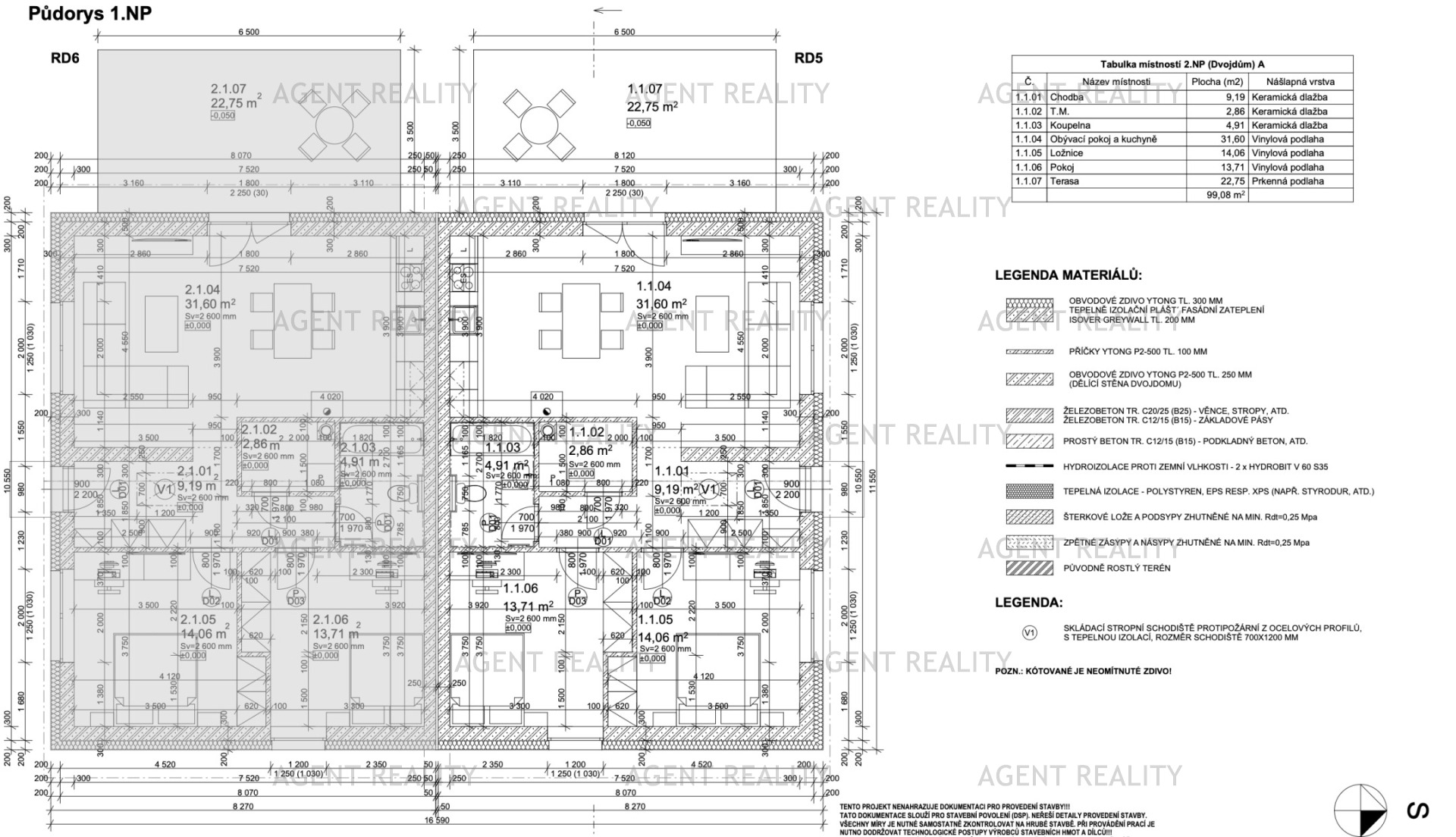
Vystavěno bude celkem 6 energeticky úsporných jednopodlažních domů z toho dva dvojdomy o dispozici 3+kk, 99 m² s užinou plochou včetně terasy 121,75 m² na vlasních pozemcích o velikostech od 538 m² - 581 m² a každý s vlastním číslem popisným. Dále budou vystaveny dva samostatné jednopodlažní domy o dispozici 3+kk, 99 m² s užinou plochou včetně terasy 121,75 m² na pozemcích o velikosti od 777 m² - 874 m², které vytvoří společně ucelenou část domů na okraji obce. Ke každému domu náleží, dlážděná terasa a vlastní oplocená zahrada.
Domy budou postaveny každý na vlastním pozemku a mají své nezavislé přípojky a měřidla elektřiny, vody a společnou kanalizaci a jsou navrženy a projektovány s ohledem na současné nejmodernější standardy, tepelné čerpadlo, podlahové topení.
Zahájení předprodeje domů z projektu je plánován na 2Q/2024. Kolaudaci domů potom očekáváme v průběhu 1Q/2025.







